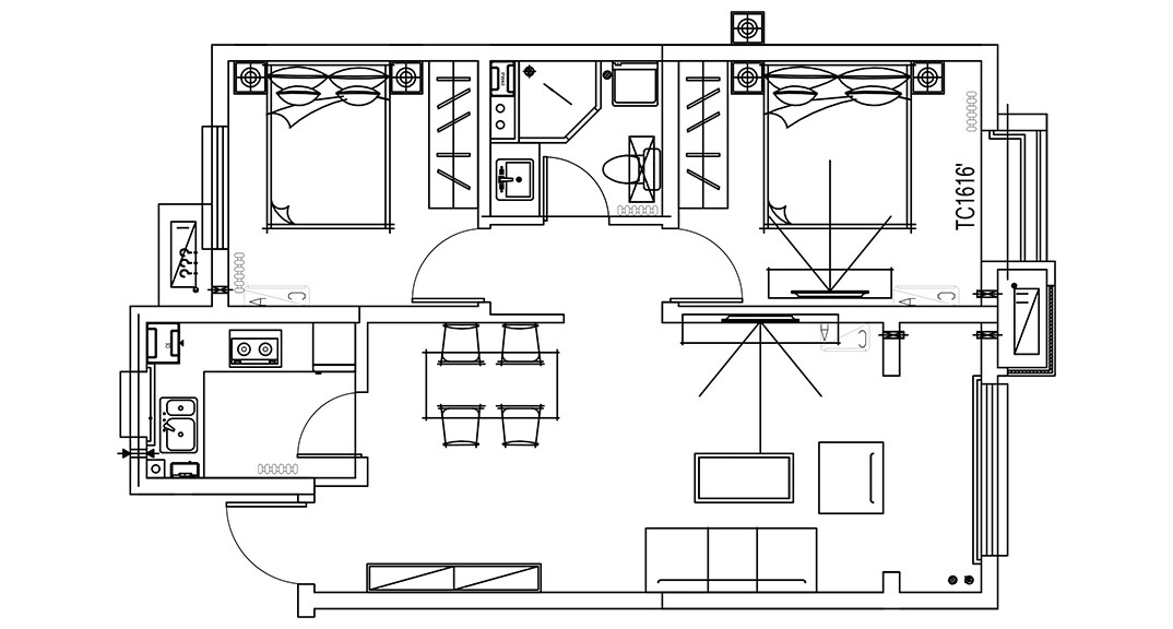
魯商藍(lán)岸公館90㎡二室二廳戶型平面布局圖
魯商藍(lán)岸公館90㎡二室二廳客廳簡(jiǎn)約風(fēng)格裝修案例效果圖
魯商藍(lán)岸公館90㎡二室二廳客餐廳簡(jiǎn)約風(fēng)格裝修案例效果圖
魯商藍(lán)岸公館90㎡二室二廳餐廳簡(jiǎn)約風(fēng)格裝修案例效果圖
魯商藍(lán)岸公館90㎡二室二廳陽臺(tái)簡(jiǎn)約風(fēng)格裝修案例效果圖
魯商藍(lán)岸公館90㎡二室二廳臥室簡(jiǎn)約風(fēng)格裝修案例效果圖