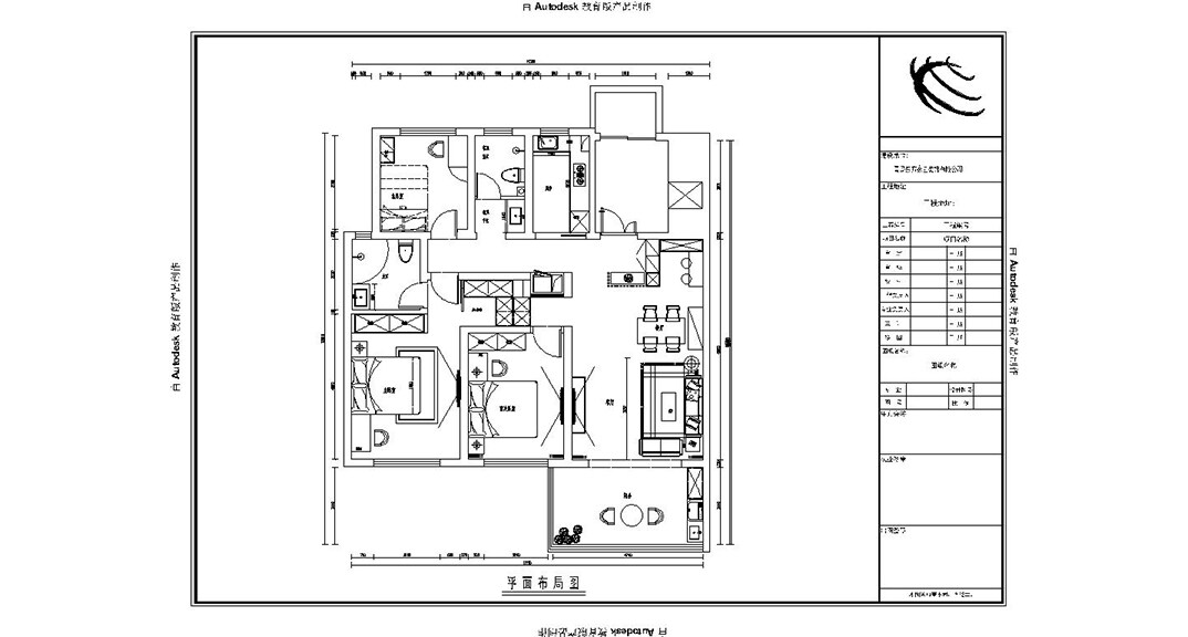
安泰德園138㎡三室兩廳戶型平面布局圖
安泰德園138㎡三室兩廳入戶玄關(guān)美式風(fēng)格裝修案例效果圖
安泰德園138㎡三室兩廳入戶玄關(guān)美式風(fēng)格裝修案例效果圖
安泰德園138㎡三室兩廳客廳美式風(fēng)格裝修案例效果圖
安泰德園138㎡三室兩廳客廳電視美式風(fēng)格裝修案例效果圖
安泰德園138㎡三室兩廳客餐廳美式風(fēng)格裝修案例效果圖
安泰德園138㎡三室兩廳客餐廳美式風(fēng)格裝修案例效果圖
安泰德園138㎡三室兩廳餐廳美式風(fēng)格裝修案例效果圖